営業時間
8:00~18:30
電話受付のみ24時間受付中
定休日
日曜日
(ご予約いただければ日曜も対応可能)

E-mail:info@nagomi-fudousan.jp

フリーコール

0800-111-0753

株式会社なごみ建築工房の総合受付に繋がります

不動産の件でとお問合せ下さい。

0742-31-0006

紀ノ川市長田中

価格: -万円

大阪から約1時間

建坪70坪超え平屋の豪華な邸宅

車もバイクもDIYやお店など夢を叶える

鉄骨造大型倉庫付

 

セカンドハウスにも最適

敷地内に家庭菜園スペースあります

※画像をクリックして頂くと、画像が拡大します☆

媒介物件のため仲介手数料3%+6万円+税がかかります。

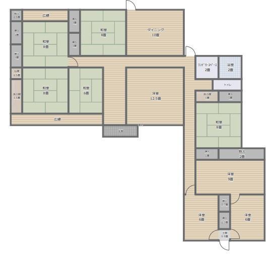
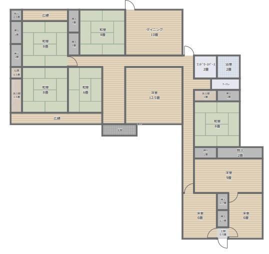
間取り図です☆9DKです☆

空撮写真です。緑に囲まれゆったりとした時間と自然を楽しめます☆

重厚な瓦屋根と広い間口が特徴的な純和風住宅です

入母屋造りの立派な玄関です

東側建物外観

洋室に勝手口があります

草刈りすると立派な日本庭園が現れます

草刈りすると立派な日本庭園が現れます

お庭空撮写真です

門廻り外観です

外壁の焼杉が特徴的な西側外観です

敷地全体の空撮写真です

玄関アプローチ・敷地内畑写真です

倉庫外観です

鉄骨造倉庫です

倉庫内に中2階があります

倉庫内部です

倉庫前スペースです

倉庫棚です

倉庫棚です

南側倉庫です

南側倉庫です

玄関ドアは引分けタイプなので、両方開くと大きな開口となります

格子天井が印象的な玄関天井です

広々とした廊下です

重厚感のある応接間です

壁の羽目板張りが美しいです

応接間室内です

南面広縁からたっぷり光が入る明るい和室です

田の字造りなので、大人数が集まっても広々使えます

贅沢な本床造りです

書院障子には縁起の良い松と鶴があしらわれています

手の込んだ欄間です

田の字造りの和室

キッチン横和室には大容量の押入れがあります

ダイニングキッチン室内です

ダイニングキッチン室内です

洗面所室内です

お風呂です

トイレです

東側建物和室です

洋室です

洋室です

洋室横勝手口です

洋室です

 \ 周辺施設 /

長田小学校

粉河中学校

紀伊長田駅

紀陽銀行

 \ 周辺施設 /

オークワ粉河店

稲穂会病院

青洲の郷

コメリパワー那賀店

物件詳細情報

価格

-万円

所在地 和歌山県紀の川市長田中
  ご内覧ご希望の場合は必ずご連絡頂きますようお願い申し上げます。
交通

和歌山線 / 紀伊長田駅  徒歩11分

 
建物名 紀の川市長田中 物件種目 古民家
間取り 9DK 地目 宅地
土地面積 1221.97㎡(369.64坪) 建物面積 383.07㎡(115.87坪)
築年月 1988(S63)年04月 階建

地上1階平屋

駐車場

有 10台前後

建物構造 木造
土地権利 所有権 都市計画 非線引区域
用途地域 無指定 接道状況

西側4.5m 接面50m

建ぺい率 70% 容積率 200%
現況 空家 引渡可能時期 相談
設備

バス・トイレ別・プロパンガス・電気・上水道・汲取・側溝・農地付

取引態様 仲介  

建坪70坪超え平屋の豪華な邸宅

車もバイクもDIYやお店など夢を叶える鉄骨造大型倉庫付

大阪から約1時間セカンドハウスにも最適

敷地内に家庭菜園スペースあります

 

大家族向けです。

倉庫も田もついてます

空き家バンク登録物件

 

 

◇交通手段◇

和歌山線 / 紀伊長田駅 徒歩11分

京奈和自動車道紀の川東ICより車で7分
京奈和自動車道紀の川ICより車で7分

 

◇教育施設◇
小学校:紀の川市立長田小学:103m 徒歩2分
中学校:粉河中学校:2km 徒歩25分 

 

 

◇商業施設◇

オークワ粉河店:2.5km 車で約6

コメリパワー那賀店:5.9km 車で約13

青洲の郷:6.5km 車で約12分

 

取引態様:仲介

情報登録日:2025.9.29  

内覧希望フォーム

以下のフォームに必要事項をご記入の上、「送信する」ボタンをクリックしてください。

必須


必須

(例:4月1日 10:00〜12:00、午後 など)

必須

(例:4月2日 10:00〜12:00、午後 など)

任意

(例:4月3日 10:00〜12:00、午後 など)

必須

(例:山田太郎)

必須

(例:やまだたろう)

必須

(例:03-0000-0000)

必須

(例:example@example.com)

必須

(例:○○県○○市○○町1-2-3)

任意
任意

(例:32歳、50代 など)

任意

テキストを入力してください

入力がうまくいかない場合は、上記内容をご確認のうえ、メールにてご連絡ください。

送信先アドレス:info@nagomi-fudousan.jp

この物件のお問合せ先

なごみ不動産

お電話でのお問合せはこちら

0800-111-0753
住所
奈良県奈良市五条畑1丁目3番13号
営業時間

8:00~18:30

E-mail
info@nagomi-fudousan.jp

お気軽にお問合せ・ご相談ください

お電話でのお問合せ・ご相談はこちら

フリーコール           
0800-111-0753

株式会社なごみ建築工房の総合受付に繋がります。
不動産の件でとお問合せ下さい。

営業時間
8:00~18:30 電話受付のみ24時間受付中
定休日
日曜日(ご予約いただければ日曜も対応可能です)